Kings Lea, Surrey Hills

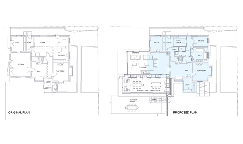
An extension / re-model project deep in the Surrey Hills at Abinger, Dorking. Our clients’ brief was to improve and enlarge their newly acquired Victorian and Edwardian house to be more family friendly and sustainable. The existing gloomy kitchen on the east side of the house, with no garden access, has been moved into a single light filled airy barn-like family space, with kitchen, dining and daytime seating, in the sunny western aspect of the house. Five metre long bespoke sliding doors open onto a paved patio for alfresco dining and childrens play. Sourced directly from our contacts in Lithuania, the high quality, well priced timber framed glazing units used throughout enabled the tight budget to  be achieved. The existing kitchen units and granite worktops were of sound quality and re-used in the new location. The old living room, with its main views to the garden and landscape blocked by an ugly chimney, was extended forward with large format sliding glazed doors, and a new chimney built with a wood burning stove. A loft conversion provided an extra en-suite bedroom, and the master bedroom gained a full height window and glazed doors, both taking full advantage of the fabulous far reaching views.

Our clients were also keen to improve the energy efficiency of the house, achieved by draught proofing and enhanced insulation, and the installation of an array of 21 flat black photovoltaic panels on the new kitchen roof facing west. Successfully integrated with the design rather than an unattractive afterthought, they will supply all the hot water and ultimately be connected to storage batteries.

The cladding used is sustainable Norwegian Kebony modified timber which weathers quickly to a uniform wam silvery grey tone. Unlike some other modified timbers Kebony is warranted for 40 years and requires no maintenance. Status: Complete.

Photographs by Jonathan Freeman